
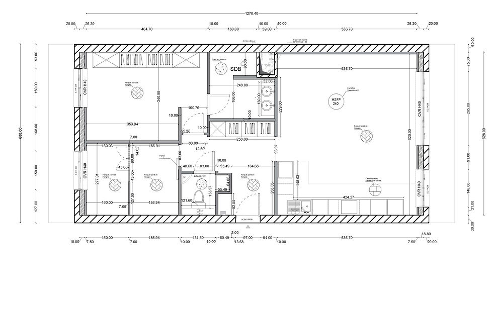
Les clients, un couple sans enfant, venaient d’acquérir un appartement de type F3 avec double balcon. Le projet consistait à optimiser les espaces de vie tout en répondant à leurs besoins spécifiques : Monsieur, en télétravail à 100 %, nécessitait un espace fonctionnel et calme, tandis que Madame, pratiquant le yoga quotidiennement à domicile, souhaitait un lieu dédié à ses séances.
Leur principale demande était d’agrandir l’espace de vie en créant une cuisine ouverte.
Pour ce projet, ils ont sollicité uniquement des plans techniques ainsi qu’un accompagnement en courtage en travaux.
J’ai réalisé les plans techniques nécessaires, intégrant des propositions d’agencement optimisé.
Un ingénieur structure a été consulté pour valider et superviser l’abattement des cloisons porteuses.
J’ai accompagné les clients dans le choix d’artisans qualifiés en les mettant en relation avec des professionnels fiables et expérimentés issus de mon réseau de partenaires
Ce projet illustre mon engagement à fournir des solutions sur-mesure, adaptées aux besoins et aux envies de mes clients, tout en garantissant la fiabilité et la qualité des interventions.
TYPE DE PROJET
Particulier
LIEU
Eure-et-Loir
SURFACE
80 m²

_edited.jpg)
_edited.jpg)



